Nowe 2 pokojowe mieszkanie dostępne od ręki
Gorzów Wielkopolski
Opis
NOWE GOTOWE DO WPROWADZENIA
MIESZKANIE
>> DOSTĘPNE OD RĘKI
OFERTA BEZ PODATKU PCC 2%!!
Na
sprzedaż
2 pokojowe
mieszkanie
o powierzchni 50,60m2 zlokalizowane w nowym
bloku
na 4 piętrze (
winda
od poziomu 0)
Lokalizacja: osiedle Europejskie, ulica Plac Unii Europejskiej
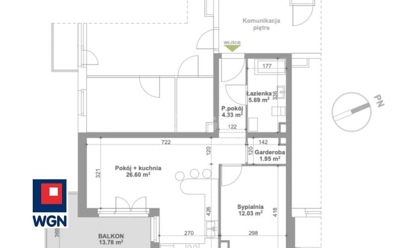
Na powierzchnię
mieszkania
składają się:
-salon z aneksem kuchennym 26,60 m2, z wyjściem na
balkon
13,78m2,
-sypialnia 12,03 m2,
-garderoba 1,95 m2
-przedpokój 4,33 m2,
-łazienka z WC 5,69 m2
*Standard
mieszkania
:
Stan deweloperski. Okna PCV 3szybowe, ogrzewanie oraz woda ciepła z sieci miejskiej.
Mieszkanie
dostępne od zaraz - stan prawny bez zastrzeżeń, pełna własność, założona księga wieczysta - bez zadłużeń i hipotek,
Osiedle, w którym znajduje się oferowane
mieszkanie
to
blok
wybudowany przez największego dewelopera w Gorzowie Wielkopolskim!!
Budynek
składa się z 5 pięter i posiada windę dostępną do poziomu 0
INFORMACJE DODATKOWE:
-
sprzedaż
bez podatku PCC (2%),
-
obiekt
posiada 3-letnią gwarancje na konstrukcje budynku oraz roboty montażowo
budowlane
/instalacyjne,
Zapraszam na prezentację!!
Reprezentuję markę WGN, która jest liderem na rynku
nieruchomości
, a dzięki swojemu 30- letniemu doświadczeniu oferuje najwyższą jakość usług. Dysponujemy szerokim zapleczem w postaci wiedzy i doświadczenia naszych agentów, pomocy prawnej oraz kompleksowej obsługi biura. Pozwala nam to zapewnić naszym klientom korzystne i bezpieczne transakcje. Stosujemy system jakości ZJ - WGN. Gwarantuję pełne zaangażowanie przy współpracy z Państwem.
*WGN
Nieruchomości
umożliwia Państwu również bezpłatną pomoc przy sprawdzeniu zdolności kredytowej w tym również pomoc w uzyskaniu kredytu. Informacje dotyczące
Nieruchomości
zostały sporządzone na podstawie dokumentów
budowlanych
, z których wynikają podane wielkości, parametry oraz ogół, a także na podstawie oświadczenia Sprzedającego. Oferta ma charakter informacyjny oraz zaproszenie do rokowań zgodnie z Art. 71 KC.
Niniejsza oferta nie stanowi oferty w rozumieniu przepisów Kodeksu Cywilnego.
Średnie ceny w tej lokalizacji:
8 418,41 zł/m²
Licznik odsłon: 96
Szczegóły
Lokalizacja
Źródło oferty: gorzow.wgn.pl • Nr oferty: 285009 • Mieszkanie, Sprzedaż
Zainteresowany?
Skontaktuj się z agentem, aby umówić się na oględziny lub uzyskać więcej informacji.

Kalkulator kredytu
Kalkulacja ma charakter orientacyjny i nie stanowi oferty kredytowej. Skontaktuj się z doradcą w celu uzyskania szczegółowej oferty.
Podobne oferty
Inne nieruchomości typu „mieszkanie” na sprzedaż
MieszkanieSprzedażPrzytulne mieszkanie po remoncie
MieszkanieSprzedażDom na dużej działce z budynkami gospodarczymi.
MieszkanieSprzedaż