Nowoczesny kompleks motoryzacyjny - 2 salony, warsztat, biura 1896 m2
Gorzów Wielkopolski
Opis
ATRAKCYJNA INWESTYCJA
KOMERCYJNA
Deszczno 1,0054 HA 2 hale 1 696 m2
Na
sprzedaż
nowoczesny kompleks usługowo-
handlowy
o łącznej powierzchni
zabudowy
1 696 m2 (w tym ok. 200 m2 powierzchni
biurowej
), położony na
działce
o powierzchni 10 054 m2, w doskonałej lokalizacji - przy drodze prowadzącej do Gorzowa Wlkp. (9 km) oraz niedaleko trasy S3 (7 km).
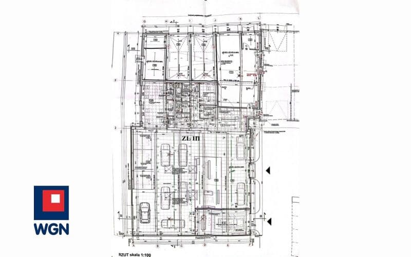
+OPIS OBIEKTU:
Kompleks składa się z dwóch niezależnych hal, połączonych ścianą zewnętrzną:
1)
Hala
nr 1 - 908 m2
-Wymiary: 54 m x 16 m
-Rok budowy: 2006 (po generalnym
remoncie
)
-Układ: część ekspozycyjna, warsztatowa,
magazyn
, zaplecze socjalne (szatnie, łazienki, toalety) oraz biura (ok. 200 m2 na 2 poziomach)
-Obecnie wolna - idealna pod salon, serwis, ekspozycję lub działalność usługową
-dostępne podnośniki
2)
Hala
nr 2 - 788 m2
-Wymiary: 38 m x 21 m
-Rok budowy: 2013
-Aktualnie wynajęta długoterminowo solidnemu najemcy, który przeprowadził w niej gruntowny
remont
i adaptację pod własne potrzeby, inwestując znaczne środki
Najemca prowadzi stabilną działalność i zapewnia stały dochód
+PARAMETRY TECHNICZNE:
-Konstrukcja: płyta warstwowa, fundament żelbetowy
-Ocieplenie: wełna mineralna
-Media: prąd (siła 20 kW), gaz, woda, kanalizacja
-Ogrzewanie: własne gazowe - podłogowe + nawiewowe
-
Klimatyzacja
: w pomieszczeniach biurowych i socjalnych
-
Monitoring
, alarm, czujniki dymu
Naturalne doświetlenie przez liczne okna
*TEREN ZEWNĘTRZNY:
-Całość utwardzona (kostka brukowa)
-Bezpośredni zjazd z asfaltu
-
Parking
na ok. 60 pojazdów
-Zbiornik na wody opadowe
-Teren ogrodzony, z dogodnym dojazdem dla pojazdów osobowych i dostawczych
*STATUS PRAWNY:
-Pełna własność z księgą wieczystą
-Brak obciążeń hipotecznych
-
Obiekt
gotowy do użytkowania
*LOKALIZACJA I POTENCJAŁ:
Strategiczne położenie - 9 km od centrum Gorzowa Wlkp., 7 km od S3.
Doskonałe warunki pod salon samochodowy, centrum serwisowe, logistykę, ekspozycję,
magazyn
lub jako lokata kapitału z gotowym najemcą.
OFEROWANA CENA DO NEGOCJACJI
Zapraszam do kontaktu w celu poznania szczegółów i umówienia prezentacji.
Tomasz Kazuś - Doradca ds.
Nieruchomości
Licencja zawodowa nr 24610
Reprezentuję markę WGN, która jest liderem na rynku
nieruchomości
, a dzięki swojemu 30- letniemu doświadczeniu oferuje najwyższą jakość usług. Dysponujemy szerokim zapleczem w postaci wiedzy i doświadczenia naszych agentów, pomocy prawnej oraz kompleksowej obsługi biura. Pozwala nam to zapewnić naszym klientom korzystne i bezpieczne transakcje. Stosujemy system jakości ZJ - WGN. Gwarantuję pełne zaangażowanie przy współpracy z Państwem.
*WGN
Nieruchomości
umożliwia Państwu również bezpłatną pomoc przy sprawdzeniu zdolności kredytowej w tym również pomoc w uzyskaniu kredytu. Informacje dotyczące
Nieruchomości
zostały sporządzone na podstawie dokumentów
budowlanych
, z których wynikają podane wielkości, parametry oraz ogół, a także na podstawie oświadczenia Sprzedającego. Oferta ma charakter informacyjny oraz zaproszenie do rokowań zgodnie z Art. 71 KC.
Niniejsza oferta nie stanowi oferty w rozumieniu przepisów Kodeksu Cywilnego.
Średnie ceny w tej lokalizacji:
8 640,89 zł/m²
Licznik odsłon: 2218
Szczegóły
Lokalizacja
Źródło oferty: gorzow.wgn.pl • Nr oferty: 268669 • Komercyjne, Sprzedaż
Zainteresowany?
Skontaktuj się z agentem, aby umówić się na oględziny lub uzyskać więcej informacji.

Kalkulator kredytu
Kalkulacja ma charakter orientacyjny i nie stanowi oferty kredytowej. Skontaktuj się z doradcą w celu uzyskania szczegółowej oferty.
Podobne oferty
Inne nieruchomości typu „komercyjne” na sprzedaż

